土地 岸和田市並松町
所在地
岸和田市並松町
1,280万円
31.45坪
・セットバック済
・建築条件付き
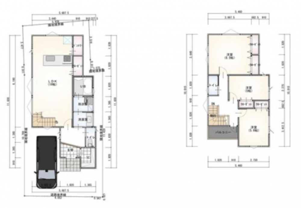
◆自由設計◆和モダンの家◆選べる自由、唯一無二の家をご提案します
岸和田・並松町に誕生する新築戸建て分譲。
駅徒歩圏で生活施設も充実した好立地に、
自由設計で叶える理想のマイホームを。
建築条件付き宅地だからこそ実現できる「こだわりの一邸」は、
元大工の経験を持つ建築士が直接ヒアリングし、
和モダンを基調に設計から施工まで一貫対応。
暮らしやすさと美しさを兼ね備えた、家族の未来を育む住まいをご提案します。
並松町の落ち着いた住環境で、新しい暮らしを始めてみませんか。
月々の
支払例
支払例
万円
年
%
円
※紀陽銀行/借入金1,280万円、返済期間35年、金利3.075%変動)の場合
※審査により金利は変わる可能性があります。
物件概要
- 交通
-
南海本線 岸和田駅 まで 徒歩9分
南海本線 和泉大宮駅 まで 徒歩13分
南海本線 蛸地蔵駅 まで 徒歩21分
- 接道状況
- 南東側4m 間口約6.9m
- 土地面積
- 公簿 103.98㎡ (31.45坪)
- 建ぺい率
- 60%
- 容積率
- 160%
- 土地権利
- 所有権
- セットバック
- 有り
- 小学校区
- 朝陽 ( 180m )
- 中学校区
- 野村 ( 900m )
- 私道負担
- あり (6.51㎡) 有 6.51
- 建築条件
- あり
- 地目
- 宅地
- 現況
- 更地
- 引渡時期
- 即時
- 上水道
- 公共
- 下水道
- 公共
- ガス
- 都市ガス
- 都市計画
- 市街化区域
- 用途地域
- 1種住居
- 設備・条件
- 備考
- 取引態様
- 仲介
建築条件付きの土地につきましては、土地売買契約締結後3カ月以内に当社の指定する建設業者と請負契約が成立しない場合には土地売買契約は解除され、受領した金額は全額無利息でお返しします。

