中古一戸建て 貝塚市東山7丁目
所在地
貝塚市東山7丁目
1,904万円
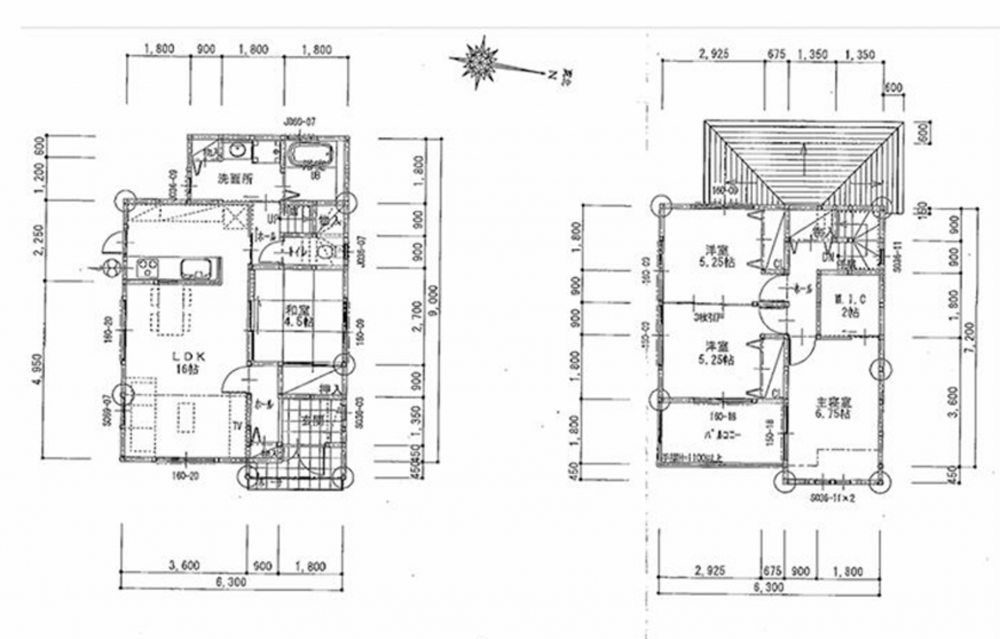
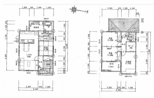
28.05坪
4LDK
駅徒歩6分・4LDK
貝塚市立東山小学校392m貝塚市立第三中学校347m
物件概要
- 交通
-
水間鉄道 三ヶ山口駅 まで 徒歩6分
- 接道状況
- 東側
- 土地面積
- 165.34㎡ (50.01坪)
- 建物面積
- 92.74㎡ (28.05坪)
- 築年数
-
2013年
(平成25)
3月
築12年 - 建ぺい率
- 50%
- 容積率
- 100%
- 土地権利
- 所有権
- 構造および階数
- 木造
- 小学校区
- 東山 ( 392m )
- 中学校区
- 第三 ( 347m )
- 私道負担
- 地目
- 現況
- 居住中
- 引渡時期
- 相談
- 駐車場
- 無
- 上水道
- 公共
- 下水道
- 公共
- ガス
- 都市計画
- 市街化区域
- 用途地域
- 1種低層
- 設備・条件
- システムキッチン、ウォークインクローゼット
- 備考
- 取引態様
- 仲介

