中古一戸建て 貝塚市橋本
所在地
貝塚市橋本
980万円
39.64坪
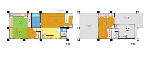
4LDK
◆4LDK
◆広々なベランダ
◆イオン貝塚店 徒歩10分
◆駐車スペース1台分あり(車種による)
最寄駅:和泉橋本駅/阪和線(天王寺~和歌山)
小学校:南小学校
中学校:第四中学校
物件概要
- 交通
-
阪和線 和泉橋本駅 まで 徒歩4分
- 接道状況
- 2m
- 土地面積
- 180.55㎡ (54.61坪)
- 建物面積
- 131.05㎡ (39.64坪)
- 築年数
-
1974年
(昭和49)
9月
築51年 - 建ぺい率
- 60%
- 容積率
- 200%
- 土地権利
- 所有権
- 構造および階数
- RC(鉄筋コンクリート) 造 地上2階建
- 小学校区
- 南 ( 600m )
- 中学校区
- 第四 ( 1100m )
- 私道負担
- 地目
- 宅地
- 現況
- 居住中
- 引渡時期
- 相談
- 駐車場
- 有 1台
- 上水道
- 下水道
- ガス
- 都市計画
- 市街化区域
- 用途地域
- 1種住居
- 設備・条件
- IHクッキングヒーター、追い焚き、床暖房、モニタ付インターホン、床下収納、エアコン2基
- 備考
- 取引態様
- 仲介

