中古一戸建て 泉南郡熊取町つばさが丘東1丁目
所在地
泉南郡熊取町つばさが丘東1丁目
3,800万円
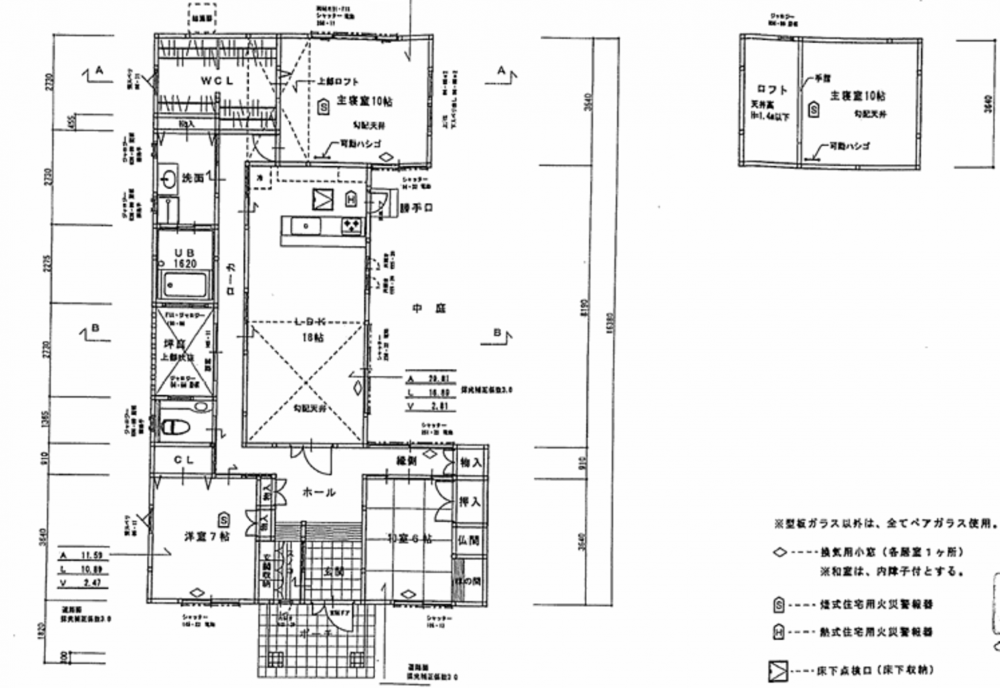
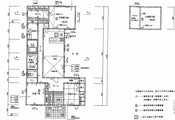
37.07坪
3LDK
平屋 太陽光パネル15kw搭載
最寄駅:水間観音駅/水間鉄道水間線 2,565m
小学校:東小学校 983m*通学校ではない可能性があります。
中学校:熊取南中学校 1,120m*通学校ではない可能性があります
物件概要
- 交通
-
阪和線 熊取駅 バス20分乗車 バス停つばさが丘中央 まで 徒歩5分
- 接道状況
-
南側 公道5.9m
西側 公道5.9m - 土地面積
- 公簿 371.88㎡ (112.49坪)
- 建物面積
- 122.55㎡ (37.07坪)
- 築年数
-
2008年
(平成20)
8月
築17年 - 建ぺい率
- 50%
- 容積率
- 100%
- 土地権利
- 所有権
- 構造および階数
- 木造 地上1階建
- 小学校区
- 東 ( 983m )
- 中学校区
- 熊取南 ( 1120m )
- 私道負担
- 無
- 地目
- 宅地
- 現況
- 空
- 引渡時期
- 予定
- 駐車場
- 上水道
- 公共
- 下水道
- 公共
- ガス
- 都市計画
- 市街化区域
- 用途地域
- 1種低層
- 設備・条件
- オール電化、床暖房、IHクッキングヒーター
- 備考
- 取引態様
- 仲介

