中古一戸建て 岸和田市松風町
所在地
岸和田市松風町
785万円
25.41坪
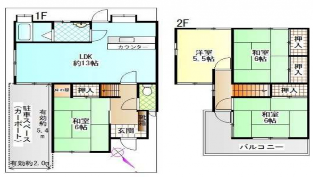
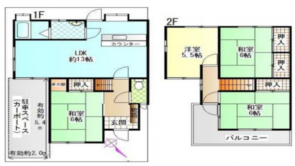
4LDK
4LDK
月々の
支払例
支払例
万円
年
%
円
※紀陽銀行/借入金785万円、返済期間35年、金利3.075%変動)の場合
※審査により金利は変わる可能性があります。
物件概要
- 交通
-
南海本線 春木駅 まで 徒歩21分
- 接道状況
- 公道4.4m
- 土地面積
- 公簿 81.39㎡ (24.62坪)
- 建物面積
- 84.03㎡ (25.41坪)
- 築年数
-
1983年
(昭和58)
12月
築42年 - 建ぺい率
- 60%
- 容積率
- 200%
- 土地権利
- 所有権
- 構造および階数
- 木造 地上2階建
- 小学校区
- 大芝 ( 550m )
- 中学校区
- 春木 ( 300m )
- 私道負担
- なし なし
- 地目
- 宅地
- 現況
- 空
- 引渡時期
- 即時
- 駐車場
- 有
- 上水道
- 公共
- 下水道
- 公共
- ガス
- 都市ガス
- 都市計画
- 市街化区域
- 用途地域
- 1種住居
- 設備・条件
- 備考
- 取引態様
- 仲介

