新築一戸建て 岸和田市西大路町
所在地
岸和田市西大路町
2,780万円
30.38坪
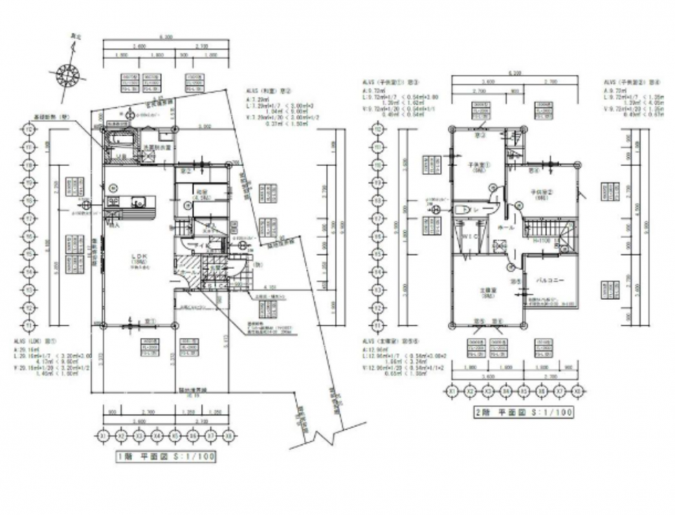
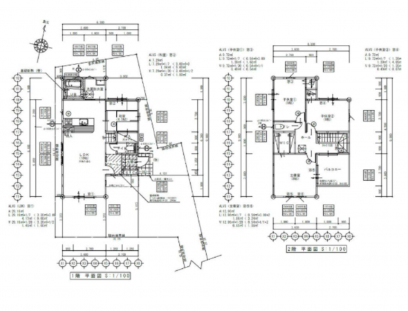
4LDK
築年月
2025年(令和 7年)11月
最寄駅:久米田駅/阪和線(天王寺~和歌山) 1,041m
小学校:八木小学校 489m
中学校:久米田中学校 1,583m
月々の
支払例
支払例
万円
年
%
円
※紀陽銀行/借入金2,780万円、返済期間35年、金利3.075%変動)の場合
※審査により金利は変わる可能性があります。
物件概要
- 交通
-
阪和線 久米田駅 まで 徒歩13分
- 接道状況
- 4m 間口約4m
- 土地面積
- 125.13㎡ (37.85坪)
- 建物面積
- 100.44㎡ (30.38坪)
- 築年数
- 2025年 (令和7) 11月
- 建ぺい率
- 60%
- 容積率
- 200%
- 土地権利
- 所有権
- 構造および階数
- 木造 地上2階建
- 小学校区
- 八木 ( 489m )
- 中学校区
- 久米田 ( 1583m )
- 私道負担
- 地目
- 宅地
- 現況
- 空
- 引渡時期
- 即時
- 駐車場
- 有
- 上水道
- 公共
- 下水道
- 公共
- ガス
- 都市ガス
- 都市計画
- 市街化区域
- 用途地域
- 準工業
- 設備・条件
- 側溝
- 備考
- 取引態様
- 仲介

