中古一戸建て 貝塚市鳥羽
所在地
貝塚市鳥羽
2,790万円
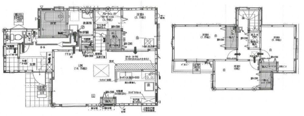
28.43坪
4LDK
◆2021年築浅、美麗
◆ウォークインクローゼットもあり収納充実!
◆カースペース有
◆両面道路
【周辺施設】
業務スーパー 貝塚店:徒歩6分(430m)
マツゲン 貝塚鳥羽店:徒歩6分(470m)
セブン-イレブン 貝塚麻生中店:徒歩10分(800m)
貝塚市立中央小学校:徒歩13分(970m)
東貝塚駅:徒歩7分(550m)
貝塚市立第一中学校:徒歩21分(1610m)
月々の
支払例
支払例
万円
年
%
円
※紀陽銀行/借入金2,790万円、返済期間35年、金利3.075%変動)の場合
※審査により金利は変わる可能性があります。
物件概要
- 交通
-
阪和線 東貝塚駅 まで 徒歩8分
南海本線 貝塚駅 まで 徒歩26分
阪和線 和泉橋本駅 まで 徒歩23分
- 接道状況
- 土地面積
- 108.50㎡ (32.82坪)
- 建物面積
- 94.00㎡ (28.43坪)
- 築年数
-
2021年
(令和3)
4月
築5年 - 建ぺい率
- 60%
- 容積率
- 200%
- 土地権利
- 所有権
- 構造および階数
- 木造 地上2階建
- 小学校区
- 中央 ( 970m )
- 中学校区
- 第一 ( 1610m )
- 私道負担
- 地目
- 宅地
- 現況
- 空
- 引渡時期
- 相談
- 駐車場
- 有
- 上水道
- 公共
- 下水道
- 公共
- ガス
- 都市ガス
- 都市計画
- 市街化区域
- 用途地域
- 1種低層
- 設備・条件
- システムキッチン、カウンターキッチン、シャンプードレッサー、洗浄便座、浴室乾燥機、ウォークインクローゼット、モニタ付インターホン、給湯 コンロ三口 グリル オープンキッチン オートバス バス1坪以上 浴室に窓 高機能トイレ フローリング 全室フローリング 全居室収納 シューズボックス シューズインクローク
- 備考
- 取引態様
- 仲介

