中古一戸建て 泉佐野市泉ケ丘3丁目
所在地
泉佐野市泉ケ丘3丁目
7,980万円
43.86坪
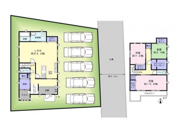
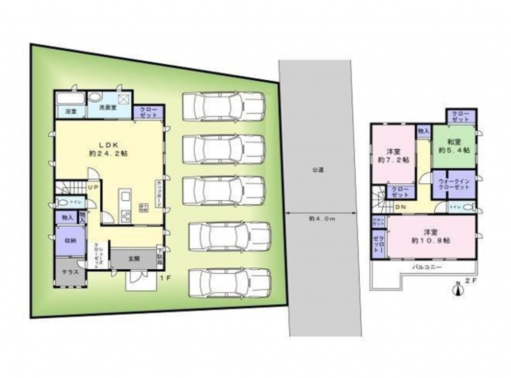
3SLDK
3SLDK・駅徒歩3分・土地面積80坪以上
セブンイレブン熊取七山店…徒歩約13分(900m)/松源泉佐野店…徒歩約8分(500m)東佐野病院…徒歩約13分(900m)/泉佐野泉ケ丘郵便局…徒歩約1分(90m)
月々の
支払例
支払例
万円
年
%
円
※紀陽銀行/借入金7,980万円、返済期間35年、金利3.075%変動)の場合
※審査により金利は変わる可能性があります。
物件概要
- 交通
-
阪和線 東佐野駅 まで 徒歩3分
- 接道状況
- 東側 公道4m 間口約14.5m
- 土地面積
- 公簿 265.65㎡ (80.35坪)
- 建物面積
- 145.00㎡ (43.86坪)
- 築年数
-
2014年
(平成26)
3月
築12年 - 建ぺい率
- 40%
- 容積率
- 80%
- 土地権利
- 所有権
- 構造および階数
- 木造 地上2階建
- 小学校区
- 長坂 ( 950m )
- 中学校区
- 第三 ( 2000m )
- 私道負担
- 地目
- 宅地
- 現況
- 居住中
- 引渡時期
- 相談
- 駐車場
- 有
- 上水道
- 公共
- 下水道
- 公共
- ガス
- 都市計画
- 市街化区域
- 用途地域
- 1種低層
- 設備・条件
- オール電化、システムキッチン、カウンターキッチン、IHクッキングヒーター、食器洗浄乾燥機、シャンプードレッサー、浴室乾燥機、モニタ付インターホン、洗浄便座、ウォークインクローゼット、追い焚き、駐車場3台分、床下収納、トイレ2箇所
- 備考
- 取引態様
- 仲介

