中古一戸建て 岸和田市池尻町
所在地
岸和田市池尻町
350万円
33.57坪
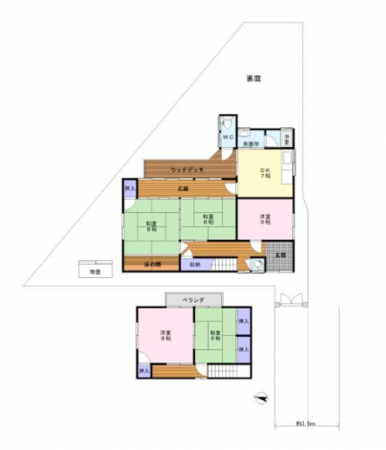
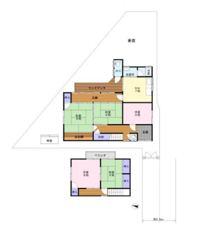
5DK
■土地面積ゆとりの約41.06坪!■ファミリー様向け5DK!八木小学校まで徒歩約10分♪※収益としても可!
八木小学校 799m 久米田中学校 1038m
月々の
支払例
支払例
万円
年
%
円
※紀陽銀行/借入金350万円、返済期間35年、金利3.075%変動)の場合
※審査により金利は変わる可能性があります。
物件概要
- 交通
-
阪和線 久米田駅 まで 徒歩17分
- 接道状況
- 西側 公道5.4m 間口約2m
- 土地面積
- 135.74㎡ (41.06坪)
- 建物面積
- 111.00㎡ (33.57坪)
- 築年数
-
1978年
(昭和53)
10月
築47年 - 建ぺい率
- 60%
- 容積率
- 200%
- 土地権利
- 所有権
- 構造および階数
- 木造 地上2階建
- 小学校区
- 八木 ( 799m )
- 中学校区
- 久米田 ( 1038m )
- 私道負担
- 地目
- 宅地
- 現況
- 空
- 引渡時期
- 相談
- 駐車場
- 無
- 上水道
- 公共
- 下水道
- 汲み取り
- ガス
- 都市ガス
- 都市計画
- 市街化区域
- 用途地域
- 1種中高
- 設備・条件
- シャンプードレッサー、トイレ2箇所
- 備考
- 取引態様
- 仲介

