新築一戸建て 貝塚市澤1号棟
所在地
貝塚市澤1号棟
2,580万円
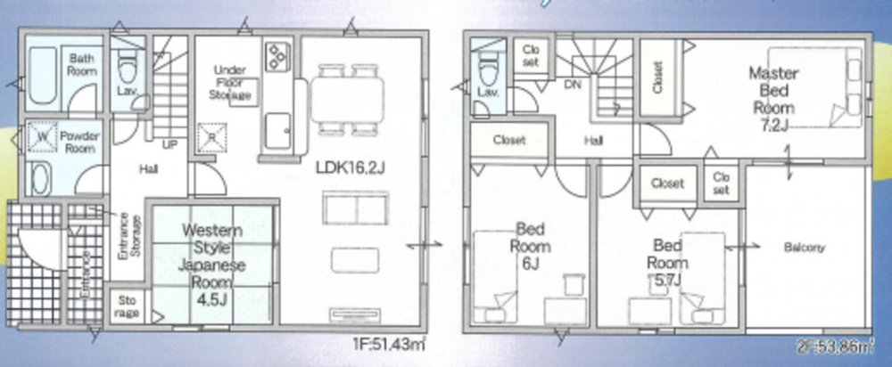
28.90坪
4LDK
◆新築
◆2026年5月完成予定の新築戸建て
◆土地面積46.50坪
◆4LDK
◆子育てしやすい
◆明るいリビング
【周辺施設】
・サンディ 二色浜店:徒歩 約8分(約605m)
・セブンイレブン 貝塚二色浜南店:徒歩 約8分(約639m)
・西クリニック:徒歩 約9分(約650m)
・貝塚沢郵便局:徒歩 約10分(約779m)
・紀陽銀行 東貝塚支店:徒歩 約12分(約954m)
・こども園杉の子:徒歩 約15分(約1.2km)
・西小学校:徒歩 約22分(約1.7km)
・第一中学校:徒歩 約33分(約2.6km)
月々の
支払例
支払例
万円
年
%
円
※紀陽銀行/借入金2,580万円、返済期間35年、金利3.075%変動)の場合
※審査により金利は変わる可能性があります。
物件概要
- 交通
-
南海本線 二色浜駅 まで 徒歩12分
南海本線 鶴原駅 まで 徒歩13分
南海本線 井原里駅 まで 徒歩25分
- 接道状況
- 南西側 公道6.3m 間口約2.6m
- 土地面積
- 実測 153.74㎡ (46.50坪)
- 建物面積
- 95.57㎡ (28.90坪)
- 築年数
- 2026年 (令和8) 4月 完成予定
- 建ぺい率
- 60%
- 容積率
- 200%
- 土地権利
- 所有権
- 構造および階数
- 木造 地上2階建
- 小学校区
- 西 ( 1729m )
- 中学校区
- 第一 ( 2611m )
- 私道負担
- 地目
- 宅地
- 現況
- 建築中
- 引渡時期
- 期日指定 2026年4月 下旬
- 駐車場
- 有 2台
- 上水道
- 公共
- 下水道
- 公共
- ガス
- 都市ガス
- 都市計画
- 市街化区域
- 用途地域
- 1種中高
- 設備・条件
- システムキッチン、カウンターキッチン、シャンプードレッサー、洗浄便座、浴室乾燥機、複層ガラス、ルーフバルコニー、モニタ付インターホン、駐車場2台分、床下収納、トイレ2箇所、地盤調査済 / 省エネ給湯器 / スーパー 徒歩10分以内 / 市街地が近い / 陽当り良好 / 全居室収納 / 駅まで平坦 / 南側道路面す / LDK15畳以上 / 前道6m以上 / 和室 / ワイドバルコニー / バリアフリー / 浴室1坪以上 /オートバス /浴室に窓 /節水型トイレ / 通風良好 / 全室2面採光 / 周辺交通量少なめ / 浄水器 / スマートキー
- 備考
-
建物面積に別途ルーフバルコニー約9.72平米有
土地面積に相互通路利用部分約16.28平米含む
土地の一部に都市計画道路(沢せんごくの杜線・計画幅員23m)有 - 取引態様
- 仲介

