中古一戸建て 貝塚市半田2丁目
所在地
貝塚市半田2丁目
550万円
25.03坪
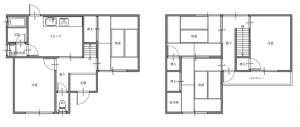
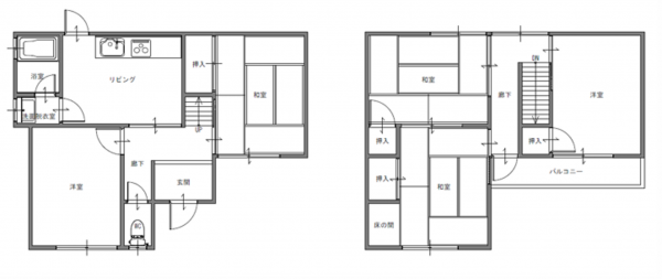
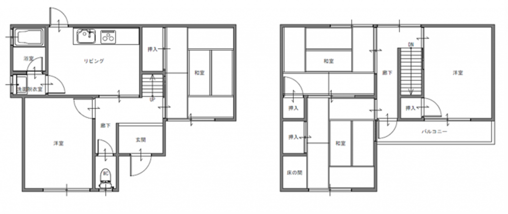
5DK
駅徒歩7分
月々の
支払例
支払例
万円
年
%
円
※紀陽銀行/借入金550万円、返済期間35年、金利3.075%変動)の場合
※審査により金利は変わる可能性があります。
物件概要
- 交通
-
阪和線 東貝塚駅 まで 徒歩7分
- 接道状況
- 私道
- 土地面積
- 公簿 76.54㎡ (23.15坪)
- 建物面積
- 82.76㎡ (25.03坪)
- 築年数
-
1974年
(昭和49)
2月
築52年 - 建ぺい率
- 60%
- 容積率
- 200%
- 土地権利
- 所有権
- 構造および階数
- 木造 地上2階建
- 小学校区
- 中央 ( 910m )
- 中学校区
- 第二 ( 1000m )
- 私道負担
- なし なし
- 地目
- 宅地
- 現況
- 空
- 引渡時期
- 即時
- 駐車場
- 上水道
- 公共
- 下水道
- 公共
- ガス
- 都市ガス
- 都市計画
- 市街化区域
- 用途地域
- 準工業
- 設備・条件
- 備考
- 取引態様
- 仲介

