収益物件/アパート 泉佐野市大宮町
所在地
泉佐野市大宮町
12,300万円
◆オーナーチェンジ物件
満室時想定利回り約6.296.29%
令和2 年11 月築
周辺には買い物施設・
飲食店充実
最寄駅:泉佐野駅/南海本線 262m
小学校:第二小学校 726m
中学校:佐野中学校 2,124m
月々の
支払例
支払例
万円
年
%
円
※紀陽銀行/借入金12,300万円、返済期間35年、金利3.075%変動)の場合
※審査により金利は変わる可能性があります。
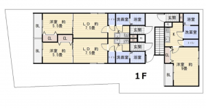
物件概要
- 交通
-
南海本線 泉佐野駅 まで 徒歩4分
- 接道状況
- 北西側4m 間口約9.5m
- 表面利回り
- 6.2%
- 土地面積
- 222.83㎡ (67.40坪)
- 建物面積
- 359.07㎡ (108.61坪)
- 所在階/階数
- 築年数
-
2020年
(令和2)
11月
築5年 - 建ぺい率
- 60%
- 容積率
- 200%
- 土地権利
- 所有権
- 構造および階数
- 木造 地上3階建
- 総戸数
- 小学校区
- 第二 ( 726m )
- 中学校区
- 佐野 ( 2124m )
- 私道負担
- 地目
- 宅地
- 現況
- 賃貸中
- 引渡時期
- 相談
- 駐車場
- 上水道
- 下水道
- ガス
- 都市計画
- 市街化区域
- 管理形態
- 管理方式
- 用途地域
- 準工業
- 設備・条件
- 備考
- 取引態様
- 仲介

