収益物件/ビル 岸和田市春木若松町
所在地
岸和田市春木若松町
3,200万円
駅徒歩4分
物件概要
- 交通
-
南海本線 春木駅 まで 徒歩4分
- 接道状況
- 公道
- 表面利回り
- 7.5%
- 土地面積
- 90.44㎡ (27.35坪)
- 建物面積
- 191.78㎡ (58.01坪)
- 所在階/階数
- 築年数
-
1983年
(昭和58)
5月
築42年 - 建ぺい率
- 60%
- 容積率
- 200%
- 土地権利
- 所有権
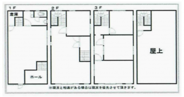
- 構造および階数
- 鉄骨造 地上3階建
- 総戸数
- 小学校区
- 中学校区
- 私道負担
- 無
- 地目
- 宅地
- 現況
- 賃貸中
- 引渡時期
- 即時
- 駐車場
- 上水道
- 公共
- 下水道
- 公共
- ガス
- 都市ガス
- 都市計画
- 市街化区域
- 管理形態
- 管理方式
- 用途地域
- 2種住居
- 設備・条件
- 天井収納
- 備考
- 取引態様
- 仲介

