収益物件/アパート 泉佐野市新町1丁目
所在地
泉佐野市新町1丁目
8,950万円
1LDK
◇収益物件◇
◆オートロック物件
◆令和6年築
◆利回りは太陽光発電含む
◆土地面積50坪以上
【周辺施設】
スーパー(528m)
商店街(1,004m)
ドラッグストア(672m)
月々の
支払例
支払例
万円
年
%
円
※紀陽銀行/借入金8,950万円、返済期間35年、金利3.075%変動)の場合
※審査により金利は変わる可能性があります。
物件概要
- 交通
-
南海本線 泉佐野駅 まで 徒歩12分
南海本線 井原里駅 まで 徒歩18分
- 接道状況
- 南東側 公道3.2m 間口約8.5m
- 収益/年
- 5,376,000円
- 表面利回り
- 6.01%
- 実質利回り
- 6.01%
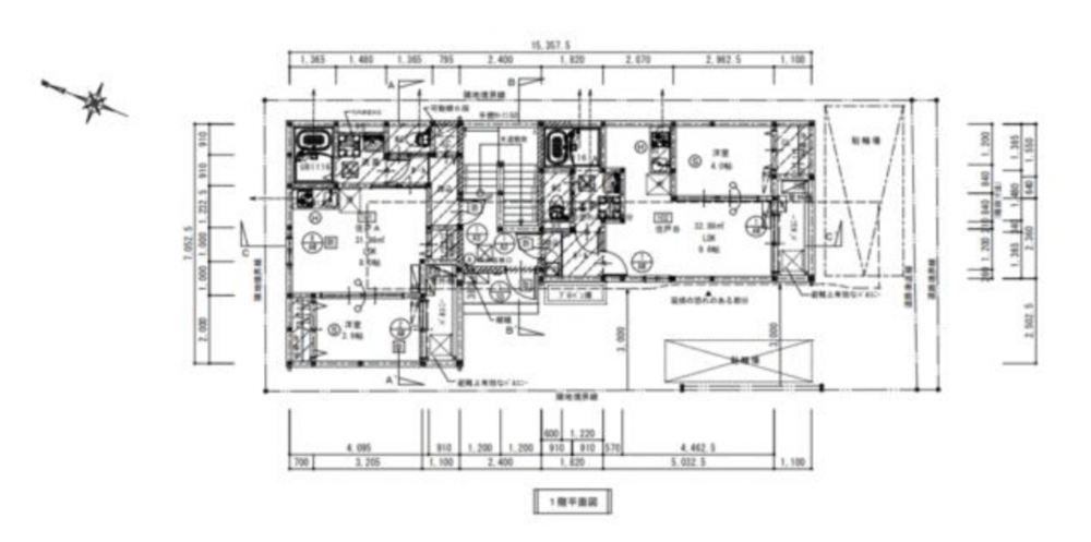
- 土地面積
- 169.05㎡ (51.13坪)
- 建物面積
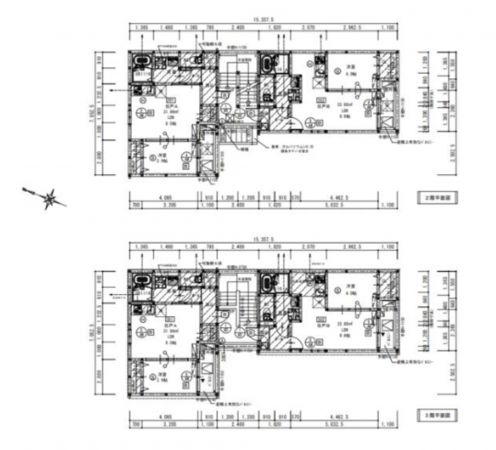
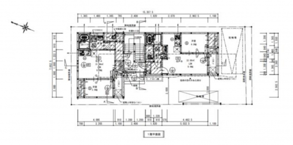
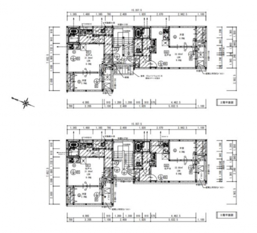
- 231.81㎡ (70.12坪)
- 所在階/階数
- 築年数
-
2024年
(令和6)
8月
築1年 - 建ぺい率
- 60%
- 容積率
- 200%
- 土地権利
- 所有権
- 構造および階数
- 木造 地上3階建
- 総戸数
- 6戸
- 小学校区
- 第三
- 中学校区
- 佐野
- 私道負担
- あり (5.70㎡) あり 5.7㎡
- 地目
- 宅地
- 現況
- 賃貸中
- 引渡時期
- 相談
- 駐車場
- 上水道
- 公共
- 下水道
- 公共
- ガス
- プロパン個別
- 都市計画
- 市街化区域
- 管理形態
- 管理方式
- 用途地域
- 1種住居
- 設備・条件
- システムキッチン、シャンプードレッサー、洗浄便座、モニタ付インターホン、オートロック、バス・トイレ別,収納スペース,宅配ボックス、太陽光1基、エアコン
- 備考
- 緊急対応サービス報酬:月額費金額0.4万円
- 取引態様
- 仲介

